Приточная установка электрическая AVI E 72/380/7000 [Юг]
Структурная схема

Схема электрического подключения

Аэродинамические характеристики вентилятора

Таблица расхода воздуха в зависимости от управляющего сигнала

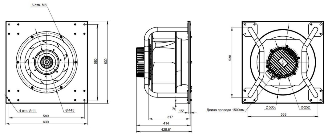
Габаритные и присоединительные размеры вентилятора

Схема подключения вентилятора

Электрическая приточная установка AVI E 72/380/7000 – это современное оборудование, предназначенное для эффективного воздухообмена в помещениях различного назначения. Благодаря высокому расходу воздуха в 7000 м³/час, данная модель идеально подходит для офисов, производственных и жилых помещений, обеспечивая свежий воздух и комфортный микроклимат.
Одной из главных особенностей установки является ее мощность – 31.5 кВт, что позволяет справляться с большими потоками воздуха и поддерживать необходимую температуру даже в условиях значительных температурных колебаний. Установка оснащена электрокалорифером, что делает ее особенно эффективной в холодное время года.
Модель AVI E 72/380/7000 разработана с учетом современных стандартов безопасности и комфорта. Корпус устройства выполнен из коррозионностойкой стали и имеет сэндвич-структуру с толщиной стенок 25 мм, что обеспечивает надежную теплоизоляцию. Благодаря этому, установка способна работать в диапазоне температур от -25 до +60 °C и при высокой влажности.
Управление установкой также продумано до мелочей. В комплект входит пульт управления с ЖК экраном, позволяющий легко настраивать параметры работы устройства. Пользователь может регулировать скорость вентилятора, а также контролировать температурные режимы, что значительно упрощает эксплуатацию.
Уровень звукового давления составляет всего 77 дБ (А), что позволяет использовать установку в помещениях, где важно поддержание тишины. При этом система защиты от перегрева и блокировки ротора гарантирует безопасность в процессе эксплуатации.
Приточная установка AVI E 72/380/7000 имеет универсальный монтаж, что позволяет устанавливать ее как вертикально, так и горизонтально. Это открывает дополнительные возможности для интеграции в различные интерьеры и архитектурные решения.
С учетом всех вышеперечисленных особенностей, данная модель идеально подходит для тех, кто ценит качество, надежность и функциональность. Установка обеспечивает не только эффективный воздухообмен, но и создание комфортной атмосферы в любых условиях, делая ее отличным выбором для бизнеса и домашнего использования.
Срок службы оборудования составляет до 40 000 часов, что делает его долгосрочной инвестицией в комфорт и здоровье. Установка также сертифицирована по международным стандартам, включая CE и ETL, что подтверждает ее высокое качество и безопасность.
В заключение, приточная установка AVI E 72/380/7000 является отличным решением для поддержания здорового микроклимата в помещениях, обеспечивая надежную и эффективную работу на протяжении многих лет.
Расход воздуха | 6000 м³/ч |
Мощность
Общая максимальная мощность вентиляционной установки. | 72 кВт |
Сечение канала | 800x500 мм |
Автоматика | Да |
Пульт управления | Да |
Вес | 48 кг |
Цвет | белый |
Полное название для заказа | AVI E 72/380/7000 |
Тип установки | Приточная |
Воздухообмен при нулевом давлении Па | 7000 м³ |
Статистическое давление Па | Согласно графику |
Тип нагревателя | Электрический |
Параметры вентилятора | 2200 об/мин | 4270 Вт |
Тип двигателя вентилятора | EС |
Максимальная потребляемая мощность | 76.3 кВт-380В |
Максимальный потребляемый ток | 128.6 А |
Напряжение питания | 380 В |
Количество фаз питания установки | 3 фазы |
Сечение канала вентиляционной установки | 800x500 мм / площ. 4000 см² |
Толщина и покрытие стенок корпуса | Сэндвич толщиной 25 мм (снаружи и внутри коррозионностойкая сталь, толщина изоляции 2.5 мм) |
Перегородка между секцией фильтра и секцией вентилятора | Оцинкованная сталь |
Пульт управления приточной установкой | с ЖК экраном |
Тип монтажа | Вертикальная / Горизонтальная |
Сторона обслуживания | Универсальная |
Гарантия на обслуживание | 36 месяцев |
Производитель | AVIMI |
Размер установки | Большой |
Характеристика установленного вентилятора | |
Номинальное напряжение | 380 В |
Диапазон напряжений | 304~456 В |
Частота | 50 Гц / 60 Гц |
Потребляемая мощность | 4200 / 42700 Вт |
Статическое давление | 1541 Па |
Минимальная температура окружающей среды вентилятора | -25 °С |
Максимальная температура окружающей среды вентилятора | +60 °С |
Материал | Алюминиевый сплав (крыльчатка) |
Срок службы | 40 000 часов (L10) При температуре воздуха в помещении 40°С, относительной влажности 15% ~ 65% |
Класс изоляции | Класс F ( 155 ℃) |
Тип защиты | IP 54 |
Производственный стандарт | GB12350 «Требования безопасности к двигателям малой мощности» JB/T10563 «технические характеристики центробежных вентиляторов общего назначения» EN60335-1 «Безопасность бытовых и аналогичных электроприборов» ISO5801-1997 «Тестирование производительности промышленных вентиляторов с использованием стандартизированных воздуховодов» GB/T2888 «Методы измерения шума вентиляторов воздуходувок компрессоров и корневых воздуходувок» |
Сертификат | CE |
Динамический баланс | Согласно JB/T 9101-1999 G-6.3 |
Вибрация вентилятора | согласно JB/T 8689 |
Электрозащита | |
Защита | Защита от ограничения тока Защита от перегрева Защита от перегрузки по току Защита от блокировки ротора Защита от перенапряжения и пониженного напряжения Во входном источнике питания отсутствует фазная защита |
Плавный пуск | Время задержки плавного пуска <35 секунд до достижения максимальной скорости |

Приточная установка электрическая AVI E 3/220/400 [Юг]163 000 ₽
Приточная установка электрическая AVI E 1,5/220/150 [Юг]148 333 ₽
Приточная установка электрическая AVI E 6/220/1000 [Юг]187 667 ₽


![Приточная установка электрическая AVI E 72/380/7000 [Юг]](/wa-data/public/shop/products/39/01/139/images/1217/1217.0x500.jpg)
![Приточная установка электрическая AVI E 72/380/7000 [Юг]](/wa-data/public/shop/products/39/01/139/images/1218/1218.0x500.jpg)
![Приточная установка электрическая AVI E 72/380/7000 [Юг]](/wa-data/public/shop/products/39/01/139/images/1219/1219.0x500.jpg)
![Приточная установка электрическая AVI E 72/380/7000 [Юг]](/wa-data/public/shop/products/39/01/139/images/1217/1217.0x96.jpg)
![Приточная установка электрическая AVI E 72/380/7000 [Юг]](/wa-data/public/shop/products/39/01/139/images/1218/1218.0x96.jpg)
![Приточная установка электрическая AVI E 72/380/7000 [Юг]](/wa-data/public/shop/products/39/01/139/images/1219/1219.0x96.jpg)

![Приточная установка электрическая AVI E 63/380/7000 [Юг]](/wa-data/public/shop/products/16/00/16/images/527/527.240.jpg)
![Приточная установка электрическая AVI E 63/380/7000 [Юг]](/wa-data/public/shop/products/16/00/16/images/528/528.240.jpg)
![Приточная установка электрическая AVI E 63/380/7000 [Юг]](/wa-data/public/shop/products/16/00/16/images/529/529.240.jpg)
![Приточная установка электрическая AVI E 126/380/12000 [Юг]](/wa-data/public/shop/products/18/00/18/images/1079/1079.240.jpg)
![Приточная установка электрическая AVI E 126/380/12000 [Юг]](/wa-data/public/shop/products/18/00/18/images/1077/1077.240.jpg)
![Приточная установка электрическая AVI E 126/380/12000 [Юг]](/wa-data/public/shop/products/18/00/18/images/1078/1078.240.jpg)
![Приточная установка электрическая AVI E 126/380/10000 [Юг]](/wa-data/public/shop/products/40/01/140/images/1220/1220.240.jpg)
![Приточная установка электрическая AVI E 126/380/10000 [Юг]](/wa-data/public/shop/products/40/01/140/images/1221/1221.240.jpg)
![Приточная установка электрическая AVI E 126/380/10000 [Юг]](/wa-data/public/shop/products/40/01/140/images/1222/1222.240.jpg)
![Приточная установка электрическая AVI E 72/380/10000 [Юг]](/wa-data/public/shop/products/15/01/115/images/1070/1070.240.jpg)
![Приточная установка электрическая AVI E 72/380/10000 [Юг]](/wa-data/public/shop/products/15/01/115/images/1068/1068.240.jpg)
![Приточная установка электрическая AVI E 72/380/10000 [Юг]](/wa-data/public/shop/products/15/01/115/images/1069/1069.240.jpg)
![Приточная установка электрическая AVI E 72/380/8000 [Юг]](/wa-data/public/shop/products/13/01/113/images/785/785.240.jpg)
![Приточная установка электрическая AVI E 72/380/8000 [Юг]](/wa-data/public/shop/products/13/01/113/images/786/786.240.jpg)
![Приточная установка электрическая AVI E 72/380/8000 [Юг]](/wa-data/public/shop/products/13/01/113/images/787/787.240.jpg)
![Приточная установка электрическая AVI E 126/380/15000 [Юг]](/wa-data/public/shop/products/41/01/141/images/1223/1223.240.jpg)
![Приточная установка электрическая AVI E 126/380/15000 [Юг]](/wa-data/public/shop/products/41/01/141/images/1224/1224.240.jpg)
![Приточная установка электрическая AVI E 126/380/15000 [Юг]](/wa-data/public/shop/products/41/01/141/images/1225/1225.240.jpg)
![Приточная установка электрическая AVI E 72/380/12000 [Юг]](/wa-data/public/shop/products/16/01/116/images/1073/1073.240.jpg)
![Приточная установка электрическая AVI E 72/380/12000 [Юг]](/wa-data/public/shop/products/16/01/116/images/1071/1071.240.jpg)
![Приточная установка электрическая AVI E 72/380/12000 [Юг]](/wa-data/public/shop/products/16/01/116/images/1072/1072.240.jpg)
![Приточная установка электрическая AVI E 99/380/12000 [Юг]](/wa-data/public/shop/products/17/00/17/images/1076/1076.240.jpg)
![Приточная установка электрическая AVI E 99/380/12000 [Юг]](/wa-data/public/shop/products/17/00/17/images/1074/1074.240.jpg)
![Приточная установка электрическая AVI E 99/380/12000 [Юг]](/wa-data/public/shop/products/17/00/17/images/1075/1075.240.jpg)
![Приточная установка электрическая AVI E 99/380/8000 [Юг]](/wa-data/public/shop/products/14/01/114/images/788/788.240.jpg)
![Приточная установка электрическая AVI E 99/380/8000 [Юг]](/wa-data/public/shop/products/14/01/114/images/789/789.240.jpg)
![Приточная установка электрическая AVI E 99/380/8000 [Юг]](/wa-data/public/shop/products/14/01/114/images/790/790.240.jpg)